2129 Pepper st, Burbank, CA 91505
| Property type: | Single Family Residence |
| MLS #: | BB25087103MR |
| Year Built: | 1941 |
| Days On Market: | 361 |
| Listing Date: | May 8, 2025 |
| County: | Los Angeles |
Property Details / Mortgage Calculator / Community Information / Architecture / Features & Amenities / Rooms / Property Features
Property Details
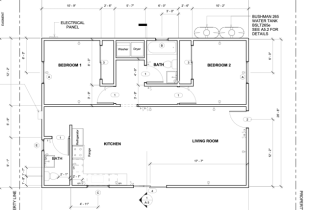
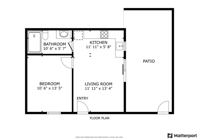
Welcome home to 2129 N Pepper Street. This stunning 3 Unit property sits on a generous 6,753 sqft lot and offers an exceptional opportunity for both investors and owner-occupants a rare gem on a beautiful tree-lined street in the heart of Burbank. Whether you re looking to live in one unit and rent the others or expand your portfolio with a high-yield asset, this property delivers flexibility, income potential, and long-term value. The front unit is the original home: a 2-bedroom, 1-bath layout spanning 860 sqft, currently leased at market rent for $2,900/month, providing immediate income. It features a private fenced back patio, front yard, 1-car garage, and 2-car driveway. Attached is a brand-new, separately accessible 1-bedroom, 1-bath addition. Though technically part of the main house on title, this thoughtfully designed 440 sqft unit feels independent, with its own entrance, fenced private patio, in-unit laundry, and modern split A/C system. It s vacant and ready to generate an estimated $1,900/month. Toward the rear, you ll find a fully detached, newly constructed Accessory Dwelling Unit (ADU), built in 2024. This spacious 997 sqft home includes 2 bedrooms, 2 full baths, and contemporary finishes throughout. The ADU also offers a fenced private patio. Like the middle unit, it will be delivered vacant, with an estimated rental potential of $3,500/month. Together, these three units total 2,297 permitted sqft and offer a combined projected monthly income of up to $8,300. The property includes a paid-off 8-panel solar system supplying power to the rear unit, adding efficiency and reducing utility expenses. A new roof and copper plumbing throughout offer added value and peace of mind for the next owner. The location is unbeatable minutes from Magnolia Park s boutiques and cafs, Porto s Bakery, Costco, and the Empire Center. It s less than ten minutes to Warner Bros, Disney Studios, and vibrant Downtown Burbank, just north of Magnolia Boulevard and the Chandler Bike Path, within the sought-after Burbank Unified School District. Whether you re looking to plant roots or collect steady rental income in one of LA s most desirable neighborhoods, 2129 N Pepper Street is a rare, move-in-ready opportunity that checks every box.Interested in this Listing?
Miami Residence will connect you with an agent in a short time.
Mortgage Calculator
PURCHASE & FINANCING INFORMATION |
||
|---|---|---|
|
|
Community Information
| Address: | 2129 Pepper st, Burbank, CA 91505 |
| Area: | BUR1YY - Burbank |
| County: | Los Angeles |
| City: | Burbank |
| Zip Code: | 91505 |
Architecture
| Bedrooms: | 5 |
| Bathrooms: | 4 |
| Year Built: | 1941 |
| Stories: | 1 |
Garage / Parking
| Parking Garage: | Direct Entrance, Driveway |
Community / Development
| Community Features: | Park, Suburban |
Features / Amenities
| Appliances: | Microwave |
| Laundry: | Gas Dryer Hookup, Inside |
| Pool: | None |
| Spa: | None |
| Private Pool: | No |
| Private Spa: | Yes |
| Common Walls: | Detached/No Common Walls |
| Cooling: | Central, Ductless |
| Heating: | Central, Ductless |
Property Features
| Lot Size: | 6,753 sq.ft. |
| View: | None |
| Zoning: | BUR1YY |
| Directions: | Near N Pepper St and W Pacific Ave |
Tax and Financial Info
| Buyer Financing: | Cash |
Detailed Map
Active
$ 1,550,000
3%
5 Beds
3 Full
1 ¾
2,297 Sq.Ft
Lot: 6,753 Sq.Ft
Home
Virtual Tour
























































