12145 Wanda st, El Monte, CA 91732
| Property type: | Single Family Residence |
| MLS #: | TR25050261MR |
| Year Built: | 1975 |
| Days On Market: | 384 |
| Listing Date: | March 6, 2025 |
| County: | Los Angeles |
Property Details / Mortgage Calculator / Community Information / Architecture / Features & Amenities / Rooms / Property Features
Property Details
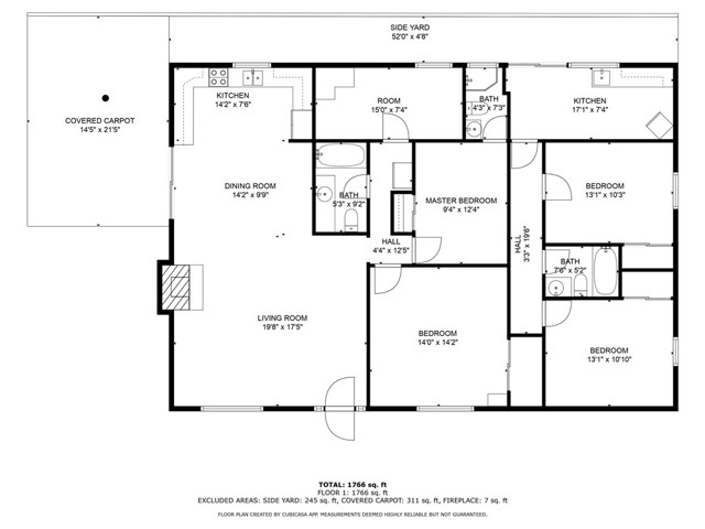
Are you a smart investor or home buyer? !!!!!!!!!!!!!!Great location in North El Monte. Gated house located in a quite and safe community. Easy access to highway I-10 and I-605. Close to school, shopping centers and Asian supermarket. The single house was built in 1943 with 638 SQFT, owner started to make addition 1114 SQFT and complete renovation of the original one in 2006 with permits, replaced the roof and install laminated wood floor, installed gas pipe, double pane windows**** County accessor put 1975 as the Effective Year Built****Owner lives in 3 bedrooms and 2 baths with spacious living room, remodeled kitchen with big dining table. Tenants live in a 2 bedrooms, 1 bath with separate entrance and kitchen. (Please refer to the floor plan on the 19th picture) ******Kitchen was remodeled 6 years ago with new granite countertop and new cabinets, range hood*****Detached garage with 180 SQFT permitted addition ( not included in the 1752 SQFT building) and laundry area has been converted to a bedroom with living room and bathroom for rental income. ******It's easy for the new owner to convert the house back to a 5 bedroom 3 baths single house with a 2 car detached garage***** Or live in the 3 bedroom main house and rent out the other 2 bedroom unit and the garage conversion unit for about $4000 monthly income.*****Assume 20% down, 6.5% 30 years rate fix, monthly payment $4,550.89, property tax $900 monthly, with 50% DTI (Debit to Income Ratio) , buyers need $10901.78 monthly income to be approved for loan; with $4000 monthly rental income, buyers need $8,101.78 monthly income only. ******Seller is willing to help to get the permits for the JADU and ADU before escrow closings if additional rental income required to be qualified for the mortgage loans.****You may buy it with your relatives or friends together since the house could be divided into 3 units with separate entries.Interested in this Listing?
Miami Residence will connect you with an agent in a short time.
Mortgage Calculator
PURCHASE & FINANCING INFORMATION |
||
|---|---|---|
|
|
Community Information
| Address: | 12145 Wanda st, El Monte, CA 91732 |
| Area: | EMR3YY - El Monte |
| County: | Los Angeles |
| City: | El Monte |
| Zip Code: | 91732 |
Architecture
| Bedrooms: | 6 |
| Bathrooms: | 3 |
| Year Built: | 1975 |
| Stories: | 1 |
Garage / Parking
| Parking Garage: | Garage - 2 Car, Parking Space |
Community / Development
| Community Features: | Sidewalks |
Features / Amenities
| Laundry: | Inside, Propane Dryer Hookup |
| Pool: | None |
| Private Pool: | No |
| Common Walls: | Detached/No Common Walls |
| Cooling: | Central |
Property Features
| Lot Size: | 6,132 sq.ft. |
| View: | None |
| Zoning: | EMR3YY |
| Directions: | Take I-10 West, Exit Durfee Ave, Right on Durfee Ave, Left on Exile Ave, Right on Maxson Road, Left on Wanda St |
Tax and Financial Info
| Buyer Financing: | Cash |
Detailed Map
Active
$ 920,000
8%
6 Beds
3 Full
1,932 Sq.Ft
Lot: 6,132 Sq.Ft


































