388 Ocean blvd, Long Beach, CA 90802
| Property type: | Condominium |
| MLS #: | PW25010250MR |
| Year Built: | 2004 |
| Days On Market: | 387 |
| Listing Date: | January 13, 2025 |
| County: | Los Angeles |
Property Details / Mortgage Calculator / Community Information / Architecture / Features & Amenities / Rooms / Property Features
Property Details
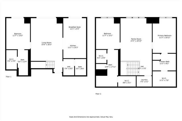
***MASSIVE PRICE IMPROVEMENT!!*** Come and experience luxury living at the 18th/19th floor penthouse level of Long Beach in the prestigious and iconic art deco inspired Aqua Towers, perched high above the Pacific Ocean. This dramatic light filled turnkey 2-story condominium offers sweeping views of beautiful downtown Long Beach all the way to the San Gabriel Mountains. The residence features soaring ceilings, a chef s kitchen with Viking appliances, coffee bar, wine refrigerator, and private balcony, 3 primary bedrooms with en suites and large walk-in closets (4 in total). Both of the sizable living/flex rooms showcase expansive windows that invite in endless light. There are 2 additional balconies off of the 1st-floor living area and first-floor primary suite. Additionally, there is a full-sized in-unit laundry room and a considerable amount of storage throughout. Included with the unit, there are two deeded parking spots, one of which is a traditional garage with motorized door and remote within the larger garage. Aqua Towers is minutes away from the 710 freeway and close to shops, restaurants, wine bars, coffee houses, museums and everything Downtown Long Beach has to offer. HOA dues include Water, basic Internet, 24/7 Security, Concierge, Pool, Spa, Fitness Center w/Sauna Room, Club Room & two business centers. Be in the heart of it all for Long Beach Grand Prix, The Long Beach Marathon, Cali Vibes, The Queen Mary Amphitheater, The Long Beach Jazz Festival, 2026 FIFA and the 2028 Olympics, plus so much more.Interested in this Listing?
Miami Residence will connect you with an agent in a short time.
Mortgage Calculator
PURCHASE & FINANCING INFORMATION |
||
|---|---|---|
|
|
Community Information
| Address: | 388 Ocean blvd, Long Beach, CA 90802 |
| Area: | LBPD6 - Downtown Area, Alamitos Beach |
| County: | Los Angeles |
| City: | Long Beach |
| Subdivision: | Aqua 388 |
| Zip Code: | 90802 |
Architecture
| Bedrooms: | 3 |
| Bathrooms: | 4 |
| Year Built: | 2004 |
| Stories: | 2 |
| Style: | Contemporary |
Garage / Parking
| Parking Garage: | Assigned, Controlled Entrance, Direct Entrance, Door Opener, Garage - 1 Car, Gated, Parking Space, Private |
Features / Amenities
| Appliances: | Convection Oven, Microwave, Oven-Electric, Range |
| Laundry: | Inside, Room |
| Pool: | Association Pool |
| Security Features: | 24 Hour, Carbon Monoxide Detector(s), Fire and Smoke Detection System, Guarded, Resident Manager, Smoke Detector |
| Private Pool: | Yes |
| Private Spa: | Yes |
| Common Walls: | Attached |
| Cooling: | Central |
| Heating: | Central |
Property Features
| Lot Size: | 120,506 sq.ft. |
| View: | City Lights, Panoramic |
| Zoning: | LBPD6 |
| Directions: | 710 to Ocean turn right onto Elm Ave |
Tax and Financial Info
| Buyer Financing: | Cash |
Detailed Map
Schools
Find a great school for your child
Active
$ 1,360,000
3%
3 Beds
3 Full
1 ¾
2,330 Sq.Ft
Lot: 120,506 Sq.Ft

























