3502 Vista dr, Manhattan Beach, CA 90266
| Property type: | Single Family Residence |
| MLS #: | SB25064558MR |
| Year Built: | 1953 |
| Days On Market: | 415 |
| Listing Date: | March 21, 2025 |
| County: | Los Angeles |
Property Details / Mortgage Calculator / Community Information / Architecture / Features & Amenities / Rooms / Property Features
Property Details
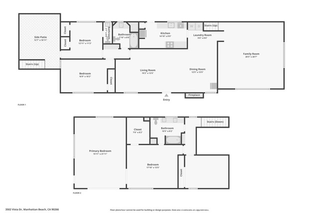
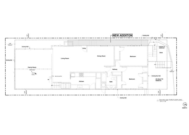
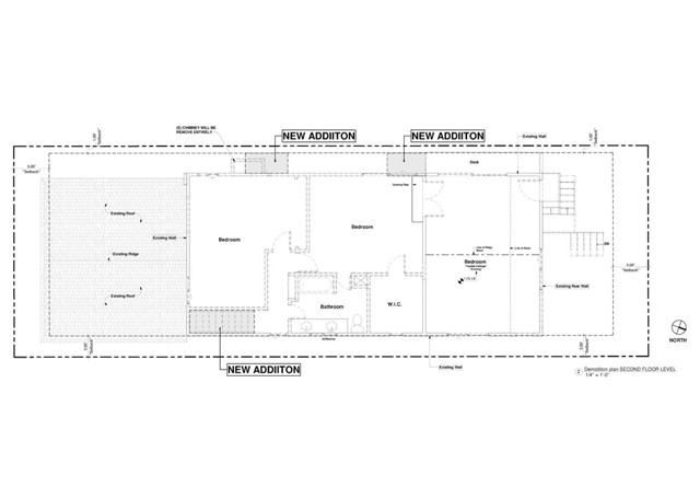
Your Future Starts Here 3502 Vista Drive, Manhattan Beach What we re offering isn t just a home it s a head start. Complete with architectural renderings and thoughtfully designed plans by renowned local architect Gary Lane, this is your opportunity to bring a stunning vision to life in the heart of Manhattan Beach s Sand Section. (see supplement for full plans) Welcome to 3502 Vista Drive, a rare corner-lot gem just blocks from the beach, where future potential meets a premier location. The included renderings showcase what could be, a reimagined coastal retreat designed to turn heads and capture hearts. The groundwork has been laid, the plans are in place. Now, it just needs you. Current specs include 4 bedrooms, 2.5 baths, and approx. 2,800 sq. ft. of flexible living space across two levels with glimpses of the ocean, generous outdoor areas, and a layout that s ripe for transformation. Whether you're an investor eyeing your next big return or a future homeowner looking to create your dream beachside escape, this property delivers both promise and possibility. The unbeatable North Manhattan Beach location offers that walk-to-everything lifestyle coffee runs, surf sessions, brunch with friends, and easy access to Silicon Beach, LAX, and the Westside. And let s not forget: properties with vision and location like this? They don t stay possibilities for long. This is your blueprint for something spectacular. Let s build it.Interested in this Listing?
Miami Residence will connect you with an agent in a short time.
Mortgage Calculator
PURCHASE & FINANCING INFORMATION |
||
|---|---|---|
|
|
Community Information
| Address: | 3502 Vista dr, Manhattan Beach, CA 90266 |
| Area: | MNRS - Manhattan Beach Sand |
| County: | Los Angeles |
| City: | Manhattan Beach |
| Zip Code: | 90266 |
Architecture
| Bedrooms: | 4 |
| Bathrooms: | 3 |
| Year Built: | 1953 |
| Stories: | 2 |
Garage / Parking
| Parking Garage: | Garage |
Community / Development
| Community Features: | Sidewalks, Street Lights |
Features / Amenities
| Laundry: | Inside |
| Pool: | None |
| Private Pool: | No |
| Common Walls: | Detached/No Common Walls |
| Cooling: | None |
Property Features
| Lot Size: | 2,695 sq.ft. |
| View: | Ocean |
| Zoning: | MNRS |
| Directions: | Corner of Vista Drive and 35th St |
Tax and Financial Info
| Buyer Financing: | Cash |
Detailed Map
Active
$ 2,995,000
4 Beds
2 Full
1 ¾
2,596 Sq.Ft
Lot: 2,695 Sq.Ft
Home
Virtual Tour

















