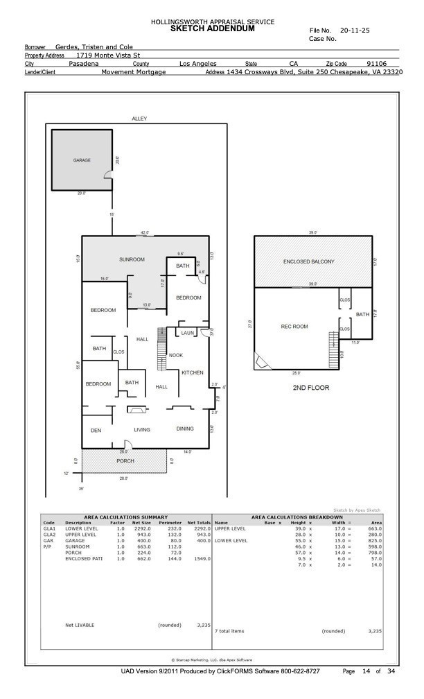
1719 Monte Vista st, Pasadena, CA 91106
| Property type: | Single Family Residence |
| MLS #: | SR25130943MR |
| Year Built: | 1921 |
| Days On Market: | 331 |
| Listing Date: | June 11, 2025 |
| County: | Los Angeles |
Property Details / Mortgage Calculator / Community Information / Architecture / Features & Amenities / Rooms / Property Features
Property Details
Welcome to this captivating Craftsman with contemporary accents on a large lot in Pasadena Heights... Imagine dinner and conversation with loved ones around the large kitchen center island, cozy skylight movie nights under the stars, and endless creative space can be yours. As you step inside, you experience rich tongue-and-groove ceilings, hallmark picture-frame windows, and warm wood floors that guide you into the heartbeat of the home the reimagined open concept chef s kitchen that boasts a burst of refreshing color and is perfect for entertaining, and features all GE Caf appliances, a breakfast bar with dual separate refrigerated beverage drawers, and a recessed hoodless vent above a 5-burner gas cooktop. The three good-sized main-level bedrooms truly offer you the possibility of making this your forever home. The private primary suite is a quiet retreat, complete with a jetted soaking tub, the second bedroom is a spacious en suite, and the third bedroom is well lit and versatile. Just off the main living area, is a gorgeous natural light filled sunroom that opens to the backyard -adapt it to your lifestyle, a playroom, yoga studio, lounge, or creative sanctuary. The expansive upstairs den crushes it as media/bonus room and wows you with soaring tongue-and-groove ceilings, lots of skylights, and the surround sound transforms your game day, movie night, and video game experience to another level! A corner fireplace adds a touch of warmth, while dual walk-in closets, spa-like bath with double vanities, and a soaking tub hint at its potential as a second primary suite. Beyond lies an additional vaulted, light-filled flex space, currently used as an open office and creative studio. Outside, the grassy backyard is perfect for entertaining and for kids and pets to run around, there s a mature lemon tree, and a detached garage with custom built workbench, ideal for projects, storage, or convert it to an ADU. The long gated driveway has space for multiple cars/trucks or recreation vehicles. Get the best of Pasadena living - start your morning close by at Jameson Brown Coffee Roasters or Lavender & Honey Espresso Bar, afternoons at Jefferson Park (Jefferson Branch Library for kids and teens) or Grant Park, and weekend adventures at Eaton Canyon, and Old Town Pasadena. Trader Joe s, The Gold Line Metro Station, and additional conveniences are also just a quick jaunt away.Interested in this Listing?
Miami Residence will connect you with an agent in a short time.
Mortgage Calculator
PURCHASE & FINANCING INFORMATION |
||
|---|---|---|
|
|
Community Information
| Address: | 1719 Monte Vista st, Pasadena, CA 91106 |
| Area: | PSR6 - Pasadena NE |
| County: | Los Angeles |
| City: | Pasadena |
| Zip Code: | 91106 |
Architecture
| Bedrooms: | 4 |
| Bathrooms: | 4 |
| Year Built: | 1921 |
| Stories: | 2 |
Garage / Parking
| Parking Garage: | Driveway, Garage - 1 Car, RV Access |
Community / Development
| Community Features: | Curbs |
Features / Amenities
| Laundry: | Inside |
| Pool: | None |
| Private Pool: | No |
| Common Walls: | Detached/No Common Walls |
| Cooling: | Central |
| Heating: | Central |
Property Features
| Lot Size: | 9,008 sq.ft. |
| Zoning: | PSR6 |
| Directions: | Lake Ave -> L on Monte Vista -> on R-side |
Tax and Financial Info
| Buyer Financing: | Cash |
Detailed Map
Active
$ 1,995,000
4 Beds
4 Full
3,466 Sq.Ft
Lot: 9,008 Sq.Ft
Home
Virtual Tour





































