1006 Palm ln, Redondo Beach, CA 90278
| Property type: | Condominium |
| MLS #: | SB25082611MR |
| Year Built: | 1977 |
| Days On Market: | 312 |
| Listing Date: | May 17, 2025 |
| County: | Los Angeles |
Property Details / Mortgage Calculator / Community Information / Architecture / Features & Amenities / Rooms / Property Features
Property Details
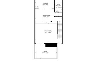
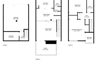
A ONE-OF-A-KIND OPPORTUNITY just 1.2 miles from the Hermosa Pier (13 minute bike and 26 minute walk)! This open-concept END UNIT is LOADED WITH UPGRADES and sits on a high perch allowing for CITY VIEWS AND EVEN MOUNTAIN VIEWS on a clear day! It offers an incredible standalone feel--no one above or below, no shared wall for any living areas, no unit number on this vacation-home-style address unlike other Redondo Villas townhomes' addresses. Too many updates to list them all, but they include: engineered hardwood flooring on both floors and stairway with custom iron handrail, dual-pane windows throughout, dual-pane door leading to the large patio, dual-pane door leading from under vaulted ceilings to the private primary-bedroom balcony, furnace, water heater, LED recessed lighting, wireless garage opener. Generous rooms with huge in-home laundry space, tons of storage and two-car direct garage. You'll adore the pleasant ocean breezes at this unique location that faces all single-family homes along a wide, quiet, family-friendly street. Amazing proximity in this Golden Hills neighborhood to all the shops, restaurants, parks and top schools. The well-maintained complex includes POOL, HOT TUB, and the HOA even includes earthquake insurance. Truly a special home in a coveted location!Interested in this Listing?
Miami Residence will connect you with an agent in a short time.
Mortgage Calculator
PURCHASE & FINANCING INFORMATION |
||
|---|---|---|
|
|
Community Information
| Address: | 1006 Palm ln, Redondo Beach, CA 90278 |
| Area: | RBPDR* - N. Redondo Beach/Golden Hills |
| County: | Los Angeles |
| City: | Redondo Beach |
| Subdivision: | Redondo Villas HOA |
| Zip Code: | 90278 |
Architecture
| Bedrooms: | 2 |
| Bathrooms: | 2 |
| Year Built: | 1977 |
| Stories: | 2 |
Garage / Parking
| Parking Garage: | Direct Entrance |
Features / Amenities
| Laundry: | Inside, Room |
| Pool: | Association Pool |
| Private Pool: | Yes |
| Common Walls: | Attached |
| Cooling: | None |
| Heating: | Central |
Property Features
| Lot Size: | 63,381 sq.ft. |
| View: | City Lights |
| Zoning: | RBPDR* |
| Directions: | South of Aviation |
Tax and Financial Info
| Buyer Financing: | Cash |
Detailed Map
Schools
Find a great school for your child
Active
$ 985,000
2 Beds
2 Full
1,128 Sq.Ft
Lot: 63,381 Sq.Ft













































