723 10th st, Santa Monica, CA 90402
| Property type: | Single Family Residence |
| MLS #: | 25536767 |
| Year Built: | 1991 |
| Days On Market: | 318 |
| Listing Date: | May 9, 2025 |
| County: | Los Angeles |
Property Details / Mortgage Calculator / Community Information / Architecture / Features & Amenities / Rooms / Property Features
Property Details
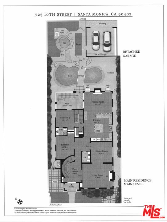
Nestled on the serene 10th Street, this estate stands as a testament to refined luxury, great ocean breezes and sheltered by mature privacy hedges that create an exclusive sanctuary. Upon entry, your attention is drawn to the dramatic entry way of over 20 feet high. Then entering the living room the 18-foot arched high wood-beamed ceilings and five towering windows flood the elegant living room with natural light, on to the newly refinished solid wood floors and anchored by a real fireplace. The heart of this residence showcases a newly reimagined large chef's kitchen, where a magnificent Black Tempal Cesarstone and Italian marble island offers gracious seating for eight, complemented by professional-grade Wolf and Sub-Zero appliances, including dual dishwashers that make entertaining effortless. Adjacent to the kitchen is a separate large home office or game room. The upper level presents four generously proportioned bedrooms, crowned by a sublime primary suite that serves as a private retreat. This exceptional space features a serene balcony overlooking the manicured grounds, a spa-inspired bathroom complete with a eucalyptus steam shower, custom walk-in closet, dedicated makeup vanity, and an intimate fireplace that creates the perfect ambiance for peaceful evenings. The ground floor continues the home's gracious flow with an additional en-suite bedroom, spacious office/game room, and a powder room adorned with striking backlit onyx. Step into the meticulously designed backyard to discover an entertainer's paradise, where a stunning swimming pool with spa and grand waterfall creates a resort-like atmosphere. A tranquil pebble rock river winds through the space, while a private dining pavilion offers the perfect setting for alfresco gatherings. The grounds have been thoughtfully oriented to capture ideal sun exposure, creating an outdoor oasis for year-round enjoyment. This exceptional residence holds a privileged position on an exclusive 40-foot-wide street, offering superior accessibility and parking compared to a typical 30-foot wide north of Montana Avenue street. Its location provides effortless access to Montana Avenue's premier boutiques and dining, while the beach lies just moments away. Presenting exceptional value below 1,235 per sq ft. when the area is typical $1,750 - 2,900 per square foot range, this estate represents a rare find in Santa Monica's most coveted enclave. Here, the seamless fusion of space, privacy, and sophisticated design creates an unmatched living experience. This home has much larger rooms and offers a unique quietness than many other homes. A separate living area of about 900 sq. ft. is present on the lower level of the home with a private outside entrance. Could also be configured as a sound studio, game room or home office. An additional ADU over the existing garage may increase the total property square footage.Interested in this Listing?
Miami Residence will connect you with an agent in a short time.
Mortgage Calculator
PURCHASE & FINANCING INFORMATION |
||
|---|---|---|
|
|
Community Information
| Address: | 723 10th st, Santa Monica, CA 90402 |
| Area: | SMR1* - Santa Monica |
| County: | Los Angeles |
| City: | Santa Monica |
| Zip Code: | 90402 |
Architecture
| Bedrooms: | 7 |
| Bathrooms: | 6 |
| Year Built: | 1991 |
| Stories: | 3 |
| Style: | Mediterranean |
Garage / Parking
| Parking Garage: | Detached, Side By Side, Permit/Decal, Garage Is Detached, Garage - 2 Car, Private Garage, Built-In Storage |
Community / Development
| Assoc Amenities: | None |
| Assoc Fees Include: | Alarm System |
Features / Amenities
| Appliances: | Built-In BBQ, Built-In Gas, Built-Ins, Cooktop - Gas, Gas, Oven-Electric, Microwave, Self Cleaning Oven, Range Hood, Double Oven, Gas Grill |
| Flooring: | Marble, Carpet, Hardwood, Vinyl Plank, Wood, Wood Laminate |
| Laundry: | Laundry Area, In Unit, Inside, Room |
| Pool: | Heated, Heated with Gas, In Ground, Waterfall, Heated And Filtered, Exercise Pool, Filtered, Private |
| Spa: | Heated with Gas, In Ground, Hot Tub, Private |
| Other Structures: | None |
| Security Features: | Prewired for alarm system, Smoke Detector, T.V., Fire and Smoke Detection System, Carbon Monoxide Detector(s), Gated |
| Private Pool: | Yes |
| Private Spa: | Yes |
| Common Walls: | Detached/No Common Walls |
| Cooling: | Air Conditioning, Central, Dual, Attic Fan, Electric, Multi/Zone |
| Heating: | Central, Natural Gas, Forced Air, Fireplace, Combination |
Rooms
| Den/Office | |
| Den | |
| Attic | |
| Bonus Room | |
| Basement | |
| Walk-In Pantry | |
| Walk-In Closet | |
| Study/Office | |
| Sauna | |
| Separate Maids Qtrs | |
| Separate Family Room | |
| Jack And Jill | |
| Library | |
| Living Room | |
| Primary Bedroom | |
| Media Room | |
| Office | |
| Guest-Maids Quarters | |
| Formal Entry | |
| Family Room | |
| Entry | |
| Dining Area | |
| Breakfast Bar | |
| Bar | |
| Pantry | |
| Powder | |
| Breakfast Area |
Property Features
| Lot Size: | 7,518 sq.ft. |
| View: | None |
| Zoning: | SMR1* |
| Directions: | North of Montana Avenue on a quiet low traffic street. This 40 foot wide street with street lights is rare and special. Only a short walk to Montana Avenue and only 10 blocks to the Palisades Park and the Santa Monica Beach. |
Tax and Financial Info
| Buyer Financing: | Cash |
Detailed Map
Active
$ 6,998,000
7 Beds
6 Full
5,658 Sq.Ft
Lot: 7,518 Sq.Ft



























































