22217 Cass ave, Woodland Hills, CA 91364
| Property type: | Single Family Residence |
| MLS #: | SR25020482MR |
| Year Built: | 1956 |
| Days On Market: | 464 |
| Listing Date: | January 25, 2025 |
| County: | Los Angeles |
Property Details / Mortgage Calculator / Community Information / Architecture / Features & Amenities / Rooms / Property Features
Property Details
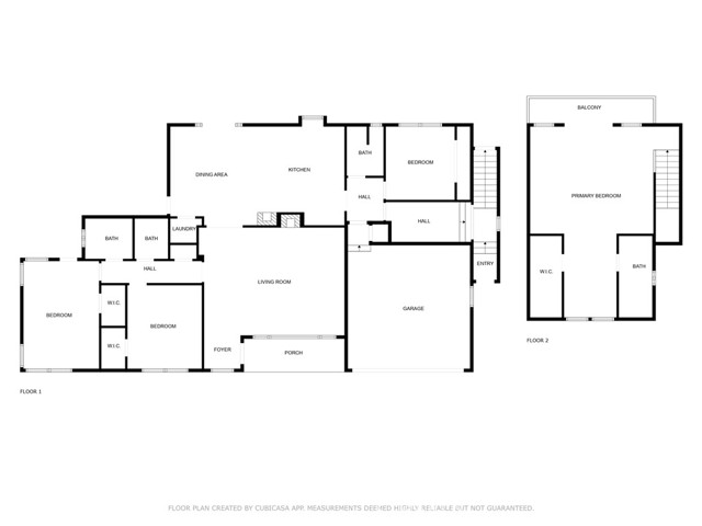
South of the Boulevard, this desirable Woodland Hills residence features four generously sized bedrooms, each with its own private bathroom. The property offers breathtaking views of the surrounding canyon. The floor plan prominently showcases the ranch-style architecture, with a distinct upstairs primary retreat. This private retreat includes a viewing balcony, a spacious walk-in closet, and even a cozy sitting room that provides ample space for relaxation. The first floor features elegant hardwood floors and two inviting fireplaces, creating a warm and inviting ambiance. The kitchen has undergone a tasteful renovation, featuring granite countertops, new appliances and contemporary finishes. Step-out patio through the french doors where you can enjoy your morning coffee or unwind with the tranquility of evening sunsets.Interested in this Listing?
Miami Residence will connect you with an agent in a short time.
Mortgage Calculator
PURCHASE & FINANCING INFORMATION |
||
|---|---|---|
|
|
Community Information
| Address: | 22217 Cass ave, Woodland Hills, CA 91364 |
| Area: | LAR1 - Woodland Hills |
| County: | Los Angeles |
| City: | Woodland Hills |
| Zip Code: | 91364 |
Architecture
| Bedrooms: | 4 |
| Bathrooms: | 4 |
| Year Built: | 1956 |
| Stories: | 2 |
Garage / Parking
| Parking Garage: | Garage |
Community / Development
| Community Features: | Hiking, Valley |
Features / Amenities
| Appliances: | Convection Oven, Oven-Gas |
| Laundry: | Inside, Laundry Closet Stacked, Stackable W/D Hookup |
| Pool: | None |
| Spa: | None |
| Private Pool: | No |
| Private Spa: | Yes |
| Common Walls: | Detached/No Common Walls |
| Cooling: | Central |
| Heating: | Central |
Property Features
| Lot Size: | 24,426 sq.ft. |
| View: | Hills, Valley |
| Zoning: | LAR1 |
| Directions: | Ventura Blvd to San Feliciano, RT on Ave San Luis, LT Macfarlane Dr, LT Cass Ave |
Tax and Financial Info
| Buyer Financing: | Cash |
Detailed Map
Pending
$ 1,400,000
5%
4 Beds
3 Full
1 ¾
2,496 Sq.Ft
Lot: 24,426 Sq.Ft
Home
Virtual Tour




























