| Property type: |
Land |
| MLS #: |
SR25037331MR |
| Days On Market: |
399 |
| Listing Date: |
February 20, 2025 |
| County: |
Los Angeles |
| Zoning: |
LAR1 |
Property Details
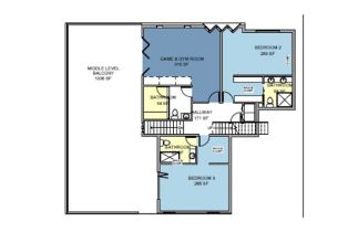
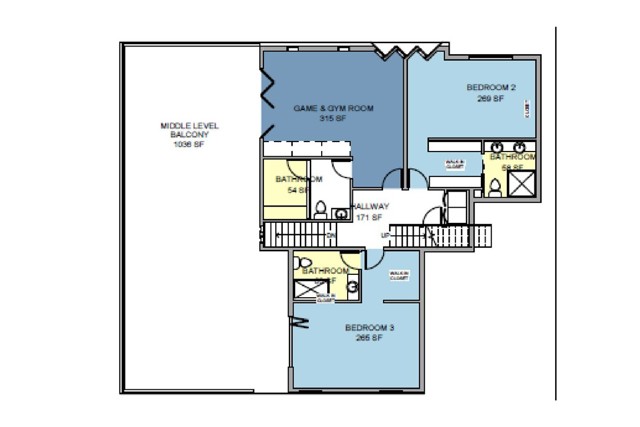
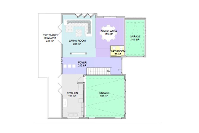
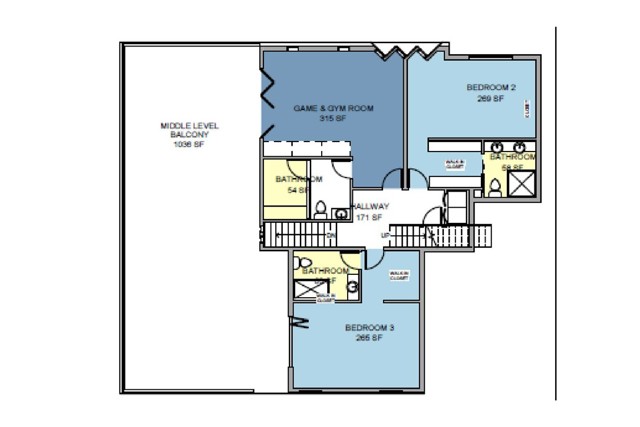
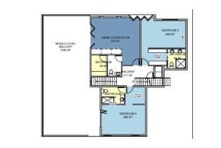
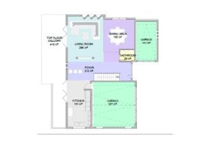
Views! Views! Views! RTI! RTI! RTI! Approved Plans, Ready to Issue! Great opportunity for Builders, Investors and or Individuals who have been waiting to build their own DREAM HOME. This spectacular South of the Boulevard location has breathtaking views of Santa Monica Mountains, Woodland Hills and Calabasas areas and is ready for your imagination. The property is located in a multi million dollar neighborhood and is adjacent to "The Heights". Approved plans and more information available upon request.
Land Info
| Directions: |
Quinta to Uhea |
| View: |
City Lights |
Schools
Find a great school for your child