24323 San Marcos rd, Carmel, CA 93923
| Property type: | Single Family Residence |
| MLS #: | 81932116ML |
| Year Built: | 1945 |
| Days On Market: | 1054 |
| Listing Date: | June 16, 2023 |
| County: | Monterey |
Property Details / Mortgage Calculator / Community Information / Architecture / Features & Amenities / Rooms / Property Features
Property Details
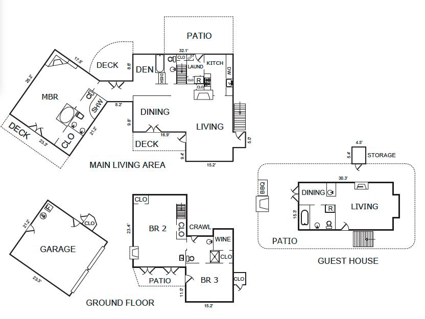
Introducing one of Carmel-by-the-Sea area's finest secret estates: an extraordinarily charming, old-world, storybook Villa on the market for the first time since 1985. Exquisitely designed and remodeled by John Newcomb, one of Carmel's most creative and esteemed designers. Styled whimsically in high quality artisan craftsmanship, Newcomb captured a thorough & timeless European Countryside character. Behind the heavy-timber security gates, hung on stout Carmel stone ornamental pillars, time slows down inside this extremely private 24,000 sf hillside property with meandering park like setting walkways, and breathtaking ocean views. In total, Villa and Guest house, four bedrooms, four bathrooms, five fireplaces, two ocean view balconies, and two car garage.Interested in this Listing?
Miami Residence will connect you with an agent in a short time.
Mortgage Calculator
PURCHASE & FINANCING INFORMATION |
||
|---|---|---|
|
|
Community Information
| Address: | 24323 San Marcos rd, Carmel, CA 93923 |
| Area: | SFR - Carmel-by-the-Sea |
| County: | Monterey |
| City: | Carmel |
| Zip Code: | 93923 |
Architecture
| Bedrooms: | 3 |
| Bathrooms: | 3 |
| Year Built: | 1945 |
| Style: | French |
Garage / Parking
| Parking Garage: | Auto Driveway Gate, Gated, Parking for Guests, Parking Space |
Community / Development
Features / Amenities
| Flooring: | Hardwood, Tile |
| Laundry: | Inside |
| Other Structures: | Shed(s) |
| Security Features: | Gated, Security Alarm |
| Private Pool: | No |
| Cooling: | None |
| Heating: | Central, Zoned |
Property Features
| Lot Size: | 20,862 sq.ft. |
| View: | Bay, Forest / Woods, Ocean, Water |
| Zoning: | SFR |
Tax and Financial Info
| Buyer Financing: | Cash |
Detailed Map
Active
$ 3,795,000
10%
3 Beds
3 Full
2,336 Sq.Ft
Lot: 20,862 Sq.Ft





















































