23502 Seaward Isle, Dana Point, CA 92629
| Property type: | Single Family Residence |
| MLS #: | OC25026497MR |
| Year Built: | 2025 |
| Days On Market: | 446 |
| Listing Date: | February 14, 2025 |
| County: | Orange County |
Property Details / Mortgage Calculator / Community Information / Architecture / Features & Amenities / Rooms / Property Features
Property Details
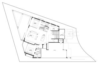
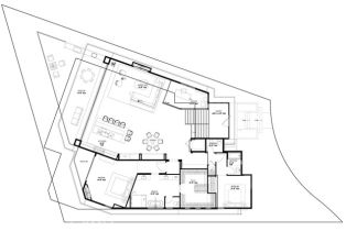
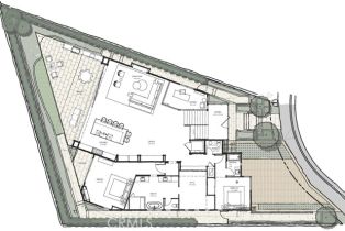
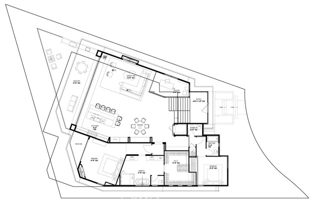
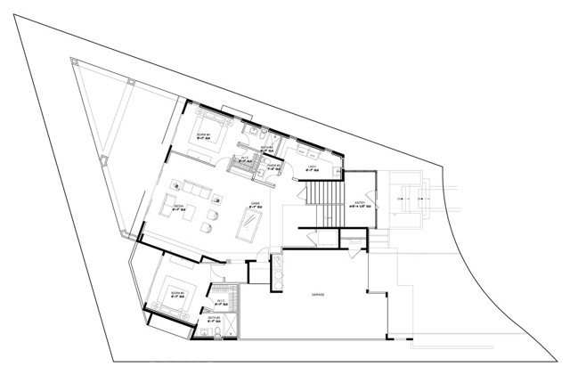
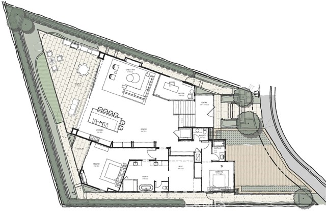
*NEW CONSTRUCTION* (TO BE COMPLETED WINTER OF 2025) This shall be an exquisite custom "White Water, Sand, Ocean View" home located in the exclusive 24-hour guard gated Oceanfront Community of Niguel Shores. This custom residence to be built by "Nicholson Companies" of Newport Beach contains approximately 4624 sqft, 4 bedroom, 4 full bath & 2 "1/2 baths", in addition, this custom-built home contains an approximate 500sqft "California Room". This residence is designed to maximize Southern California lifestyle with indoor/outdoor living & stunning ocean views! This open & spacious floorplan will feature a great room with uninterrupted views through a wall of multi panel, sliding glass doors! The main floor master suite possesses outstanding, ocean views, contemporary fireplace, generously sized walk-in closet, spa-like bath, freestanding soaking tub, Kohler faucets and toilets, and a frameless clear glass shower enclosure". The Gourmet center island kitchen will feature Miele appliances inclusive of refrigerator & freezer, 48 8-burner gas range with integrated microwave and warming drawer, dishwasher as well as quartz "counters, undercabinet lighting, and custom cabinetry with selected pulls from Emtek! Additional interior features will include soffit & elevated ceilings, wire-brushed white oak engineered hardwood flooring throughout, hardwood stair treads & risers with custom steel or wood rail system, 8-foot solid core interior doors, 6-inch baseboards Custom elevator, a second contemporary linear fireplace in the living/dining area, interior sprinkler system, Epoxy covered coating & prep for "e-charger" in 3-car garage, CAT7 ethernet wire, professionally designed DCS security system with touchscreen panels & security sensors throughout, energy efficient HVAC air conditioning system, HEPA air filtration system, air quality sensor technology, smartphone app technology, reverse osmosis drinking water & whole home water filtration system. Exterior features will include a smooth stucco exterior, custom oversize front door system, with complimenting garage doors. Exterior landscaping will be inclusive of professional planting of all yard areas, automatic irrigation & drainage system, custom landscape lighting package, and a 36-inch built-in barbecue. This custom built residence will share a cul-de-sac location with only 3 additional homes. Walking distance to the Pacific Ocean & surfing breaks are minutes away! Truly an incredible opportunity!!Interested in this Listing?
Miami Residence will connect you with an agent in a short time.
Mortgage Calculator
PURCHASE & FINANCING INFORMATION |
||
|---|---|---|
|
|
Community Information
| Address: | 23502 Seaward Isle, Dana Point, CA 92629 |
| Area: | Monarch Beach |
| County: | Orange County |
| City: | Dana Point |
| Subdivision: | Niguel Shores |
| Zip Code: | 92629 |
Architecture
| Bedrooms: | 4 |
| Bathrooms: | 6 |
| Year Built: | 2025 |
| Stories: | 2 |
| Style: | Modern |
Garage / Parking
| Parking Garage: | Direct Entrance, Driveway |
Community / Development
| Complex/Assoc Name: | Niguel Shores |
| Assoc Amenities: | Assoc Barbecue, Biking Trails, Controlled Access, Exercise Room, Other Courts, Outdoor Cooking Area, pool, Security, Sport Court |
| Assoc Pet Rules: | Call For Rules |
| Community Features: | Curbs, Gutters, Sidewalks, Street Lights |
Features / Amenities
| Appliances: | Microwave, Oven-Electric, Range |
| Laundry: | Gas Or Electric Dryer Hookup, Inside, Room, Washer Hookup |
| Pool: | None |
| Spa: | None |
| Security Features: | 24 Hour, Carbon Monoxide Detector(s), Exterior Security Lights, Fire and Smoke Detection System, Gated, Gated Community with Guard, Gated with Attendant, Smoke Detector |
| Private Pool: | No |
| Private Spa: | Yes |
| Common Walls: | Detached/No Common Walls |
| Cooling: | Central, ENERGY STAR Qualified Equipment |
| Heating: | Central |
Property Features
| Lot Size: | 5,270 sq.ft. |
| View: | Coastline, Ocean, Panoramic, White Water |
| Directions: | Enter only at main gate...Mariner Dr, (R) on Niguel Shores, (R) on Shackleton, (L) on Cabrillo |
Tax and Financial Info
| Buyer Financing: | Cash |
Detailed Map
Active
$ 12,500,000
4 Beds
4 Full
2 ¾
4,624 Sq.Ft
Lot: 5,270 Sq.Ft


















