19139 Chandon ln, Huntington Beach, CA 92648
| Property type: | Single Family Residence |
| MLS #: | OC25099441MR |
| Year Built: | 2000 |
| Days On Market: | 350 |
| Listing Date: | May 19, 2025 |
| County: | Orange County |
Property Details / Mortgage Calculator / Community Information / Architecture / Features & Amenities / Rooms / Property Features
Property Details
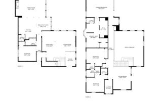
Beautifully maintained 4-bed, 3-bath two-story home in the gated Peninsula Park community of Huntington Beach. Spacious living room, open kitchen with granite counters, center island, pantry, and family room perfect for entertaining. Main floor bedroom with nearby 3/4 bath ideal for guests or office. Upstairs features large primary suite with soaking tub, walk-in closet, separate shower, dual vanities, and private balcony. Two additional bedrooms, full bath, loft/office with its own balcony, and upstairs laundry room with utility sink. Backyard is an entertainer s dream with private pool featuring a stone waterfall, spa, and built-in fire pit. 3-car garage with built-in cabinets. Minutes from the beach, shopping, dining, and Huntington Beach Dog Beach. Across the street from award-winning Seacliff Elementary and adjacent to Discovery Well Park. Gated community with manicured grounds, pedestrian gates, and low HOA dues. Rare opportunity to own in one of Huntington Beach s most sought-after neighborhoods!Interested in this Listing?
Miami Residence will connect you with an agent in a short time.
Mortgage Calculator
PURCHASE & FINANCING INFORMATION |
||
|---|---|---|
|
|
Community Information
| Address: | 19139 Chandon ln, Huntington Beach, CA 92648 |
| Area: | West Huntington Beach |
| County: | Orange County |
| City: | Huntington Beach |
| Subdivision: | Peninsula Park |
| Zip Code: | 92648 |
Architecture
| Bedrooms: | 4 |
| Bathrooms: | 3 |
| Year Built: | 2000 |
| Stories: | 2 |
| Style: | Traditional |
Garage / Parking
| Parking Garage: | Direct Entrance, Driveway |
Community / Development
| Complex/Assoc Name: | Peninsula Park |
| Assoc Amenities: | Security |
| Assoc Pet Rules: | Call For Rules |
| Community Features: | Storm Drains, Street Lights |
Features / Amenities
| Appliances: | Double Oven, Microwave, Oven-Gas |
| Laundry: | Inside, On Upper Level, Room |
| Pool: | Heated, In Ground, Private, Waterfall |
| Spa: | Heated, In Ground, Private |
| Security Features: | Automatic Gate, Carbon Monoxide Detector(s), Gated, Smoke Detector |
| Private Pool: | Yes |
| Private Spa: | Yes |
| Common Walls: | Detached/No Common Walls |
| Cooling: | Central |
| Heating: | Central |
Property Features
| Lot Size: | 5,569 sq.ft. |
| Directions: | Gated community entrance via Summit Drive (off Goldenwest). Call agent for entry code. |
Tax and Financial Info
| Buyer Financing: | Cash |
Detailed Map
Pending
$ 2,699,000
4 Beds
3 Full
2,903 Sq.Ft
Lot: 5,569 Sq.Ft
Home
Virtual Tour





















































