19847 Coventry ln, Huntington Beach, CA 92646
| Property type: | Single Family Residence |
| MLS #: | OC25122418MR |
| Year Built: | 1964 |
| Days On Market: | 301 |
| Listing Date: | May 28, 2025 |
| County: | Orange County |
Property Details / Mortgage Calculator / Community Information / Architecture / Features & Amenities / Rooms / Property Features
Property Details
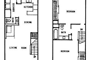
Beach-resort living meets modern comfort in this beautifully updated 2-story townhome nestled in the highly sought-after area in south Huntington Beach. As you enter, you'll feel at home with the warm, inviting floor plan featuring wide-plank luxury vinyl plank flooring, recessed lighting, and a charming painted brick fireplace that adds character to the spacious living room. The dining area flows seamlessly into a tastefully remodeled kitchen, where you'll find granite countertops, crisp white shaker cabinets, and stainless steel appliances. The wall between kitchen and hall to laundry was removed to open up the space which has increased the kitchen space. A sliding barn door conceals the laundry area, and there's a convenient large storage nook tucked beneath the stairs perfect for keeping things neat and organized. A remodeled powder room, with vanity and cabinet. The private enclosed patio complete the main level, ideal for entertaining and relaxing outdoors. Upstairs, you ll find two generously sized bedrooms with plush carpeting, in the primary bedroom you ll find 2 closets with mirrored doors, and plenty of natural light. The full bathroom has been thoughtfully upgraded with a granite countertop vanity, modern lighting, and a designer glass shower door with tub enclosure and ample shelving. Residents of this community enjoy access to resort-style amenities including a large greenbelts, sparkling pool and spa, shaded playground, outdoor fitness equipment, picnic areas, and a basketball court. The home includes two assigned parking spaces one covered with overhead storage cabinets and one permit parking pass for guests or a second vehicle. Ideally located just minutes from the sand, parks, restaurants, and schools. This townhome offers the perfect blend of beach-close lifestyle, modern upgrades, and a community-focused environment.Interested in this Listing?
Miami Residence will connect you with an agent in a short time.
Mortgage Calculator
PURCHASE & FINANCING INFORMATION |
||
|---|---|---|
|
|
Community Information
| Address: | 19847 Coventry ln, Huntington Beach, CA 92646 |
| Area: | South Huntington Beach |
| County: | Orange County |
| City: | Huntington Beach |
| Subdivision: | Huntington Continentals |
| Zip Code: | 92646 |
Architecture
| Bedrooms: | 2 |
| Bathrooms: | 2 |
| Year Built: | 1964 |
| Stories: | 2 |
Garage / Parking
| Parking Garage: | Carport |
Community / Development
| Complex/Assoc Name: | Huntington Continentals |
| Assoc Amenities: | Playground, pool |
| Assoc Pet Rules: | Call For Rules, Yes |
| Community Features: | Street Lights |
Features / Amenities
| Laundry: | Electric Dryer Hookup, Hookup - Electric, Inside, Room, Washer Hookup |
| Pool: | Association Pool, Fenced |
| Security Features: | Carbon Monoxide Detector(s), Smoke Detector |
| Private Pool: | Yes |
| Private Spa: | Yes |
| Common Walls: | Attached |
| Cooling: | None |
| Heating: | Forced Air |
Property Features
| Lot Size: | 640 sq.ft. |
| Directions: | Across from outdoor workout area, GPS takes you to the carport, walk north then east to find unit on other side of greenbelt |
Tax and Financial Info
| Buyer Financing: | Cash |
Detailed Map
Active
$ 625,000
2 Beds
1 Full
1 ¾
960 Sq.Ft
Lot: 640 Sq.Ft




























































