207 Colton st, Newport Beach, CA 92663
Active
$2,995,000
2 Units
7 Beds
4 Baths
2,670 Area(sq.ft.)
Lot: 2,553 Lot Size(sq.ft.)
| Type | # of Units | Bedroom | Bath | Furnished | Rent | Actual Rent | Projected Rent |
|---|---|---|---|---|---|---|---|
| Unit 1 | 1 | 4 | 2 | No | n/a | n/a | $ 6,895 |
| Unit 2 | 1 | 3 | 2 | No | n/a | n/a | $ 5,795 |
| 2 | 7 | 4 | $ 0 | $ 0 | $ 12,690 |
| MLS #: | NP25100315MR |
| Days On Market: | 322 |
| Listing Date: | May 5, 2025 |
| County: | Orange County |
| Property Type: | Residential Income |
| Price per ft2: | $ 1,122 |
| Price per unit: | $ 1,497,500 |
| Year Built: | 1972 |
Property Details
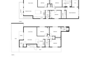
Welcome to 207 Colton St, a beautifully remodeled duplex and one of the largest residences in the community. This 7-bedroom, 4-bathroom property offers 2,671 SF of total living space on an oversized 2,550 SF lot, with thoughtful upgrades throughout. The upper unit features 4 bedrooms, 2 bathrooms, and 1,542 SF of space with wide plank wood flooring, a bright front balcony, and a luxurious primary suite complete with dual sinks, a large shower, and a six-foot jacuzzi tub. The lower unit provides 3 bedrooms, 2 bathrooms, and 1,128 SF, highlighted by an expansive front patio perfect for entertaining. The property offers flexibility to accommodate extended family or generate rental income, making it ideal for a variety of lifestyles and opportunities. Recently remodeled in 2022, the home also received a new roof and solar installation in 2023. A large two-car garage includes extra laundry facilities, while both units offer in-unit laundry. Additional highlights include a Tesla charger, private entries and outdoor showers for each unit, and a red-curb frontage for unobstructed access. Located just a short walk from the beach, residents enjoy easy access to the sand and surf, as well as scenic bike paths, nature trails, and the serene Newport Bay. Situated on a quiet cul-de-sac without a residential neighbor on one side, this property boasts a rare, end-of-alley location and generous outdoor spaces. Perfect as a turnkey investment or owner-user residence, 207 Colton St combines modern convenience, indoor-outdoor living, and the ultimate Newport Beach coastal lifestyle.Interested in this Listing?
Miami Residence will connect you with an agent in a short time.
Income Details
| Rent Control: | False |
| Total Annual Expense: | $ 0 |
| Net Operating Income: | $ 0 |
Structure
| Community Features: | Biking, Watersports, Sidewalks |
| Security Features: | Carbon Monoxide Detector(s), Smoke Detector |
| Sewer: | Public Sewer |
| View Description: | Peek-A-Boo |
| Water: | Public |
Land & Parking
| Land Lease Type: | Fee |
Interior
| Cooking Appliances: | Microwave |
| AC/Cooling: | None |
| Equipment: | Dishwasher, Garage, Inside, Microwave, Refrigerator |
| Heating: | Central |
| Fireplace Rooms: | None |
| Laundry: | Garage, Inside |
Exterior
| Pool: | No |
Detailed Map
Schools
Find a great school for your child













































