143 Mira del Sur, San Clemente, CA 92673
| MLS #: | OC25060972MR |
| Year Built: | 1974 |
| Days On Market: | 415 |
| Listing Date: | March 15, 2025 |
| County: | Orange County |
Property Details / Mortgage Calculator / Community Information / Architecture / Features & Amenities / Rooms / Property Features
Property Details
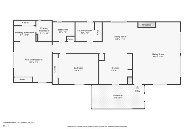
Welcome to 143 Mira del Sur, located in the highly desirable 55+ community of Shorecliffs Terrace in San Clemente. This charming 2-bedroom, 2-bathroom home offers comfort and style with a spacious layout and thoughtful details. The large living room, featuring beautiful plantation shutters, is perfect for entertaining or relaxing, while the generous bedrooms provide ample space for your needs. A cozy fireplace adds warmth to the living area, and the art/sunroom offers a bright and airy spot for creativity or quiet reflection. The dining room also boasts plantation shutters, adding a touch of elegance. The built-in hutch offers additional storage and character. The kitchen comes complete with a refrigerator, and the convenient laundry room includes a sink along with the washer and dryer. With a carport and a shed for additional storage, you'll enjoy a low-maintenance lifestyle. This property does have a 433! Located in a well-maintained neighborhood, just minutes from the beach and local amenities, this is a rare opportunity for comfortable coastal living in San Clemente. No space rent! Own your own land! Don t miss out!Interested in this Listing?
Miami Residence will connect you with an agent in a short time.
Mortgage Calculator
PURCHASE & FINANCING INFORMATION |
||
|---|---|---|
|
|
Community Information
| Address: | 143 Mira del Sur, San Clemente, CA 92673 |
| Area: | Coast District |
| County: | Orange County |
| City: | San Clemente |
| Subdivision: | Shorecliffs Terrace Ins |
| Zip Code: | 92673 |
Architecture
| Bedrooms: | 2 |
| Bathroom: | 1 |
| Year Built: | 1974 |
| Stories: | 1 |
Garage / Parking
| Parking Garage: | Carport |
Community / Development
| Complex/Assoc Name: | Shorecliffs Terrace Ins |
| Assoc Amenities: | Exercise Room, pool |
| Assoc Pet Rules: | Assoc Pet Rules, Call For Rules |
| Community Features: | Curbs, Storm Drains |
Features / Amenities
| Appliances: | Double Oven, Microwave |
| Laundry: | Dryer, Dryer Included, Inside, Room, Washer, Washer Included |
| Pool: | Association Pool |
| Security Features: | Carbon Monoxide Detector(s), Smoke Detector |
| Private Pool: | Yes |
| Private Spa: | Yes |
| Common Walls: | Detached/No Common Walls |
| Cooling: | Central |
Property Features
| Lot Size: | 3,500 sq.ft. |
| View: | Hills |
| Directions: | Camino del los Mares to Calle Nuevo rt on Mira Puerto to Mira Adelante to Mira del Sur on lt |
Tax and Financial Info
| Buyer Financing: | Cash |
Detailed Map
Pending
$ 649,000
4%
2 Beds
1 Full
1,488 Sq.Ft
Lot: 3,500 Sq.Ft
Home
Virtual Tour











































