27821 Golden Ridge ln, San Juan Capistrano, CA 92675
| Property type: | Land |
| MLS #: | OC25120601MR |
| Days On Market: | 300 |
| Listing Date: | May 27, 2025 |
| County: | Orange County |
| Zoning: | R-1 |
Property Details
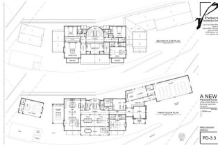
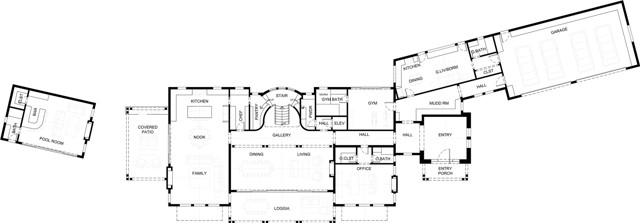
Unmatched Privacy. Iconic Views. Endless Possibilities. Welcome to 27821 Golden Ridge Lane, a rare 2.98-acre opportunity nestled behind the prestigious guarded gates of The Hunt Club, one of San Juan Capistrano s most coveted and private equestrian communities. Perched on a homesite with sweeping panoramic views of Saddleback Mountain, sparkling city lights, and tranquil canyon ridgelines, this parcel offers the perfect canvas to design and build a legacy estate tailored to your vision. The architectural design by renowned firm, Peter s Architecture, has already been thoughtfully crafted to inspire your dream home, further enhancing the tremendous value and potential of this exceptional lot. Surrounded by luxury residences and timeless architecture, the property features generous usable acreage ideal for a custom home, detached guest quarters, resort-style pool, equestrian facilities, or curated outdoor entertaining spaces. The setting offers a rare blend of natural beauty and refined exclusivity, just minutes from the charming heart of downtown San Juan Capistrano, world-class beaches, premier private schools, and coastal dining destinations. Whether you're envisioning a modern masterpiece or a classic hacienda, Golden Ridge Lane delivers the location, scale, and prestige to bring your dream to life, all within the serenity and security of an established luxury and prestigious gated enclave. No Mello-Roos. Low HOA. Architectural freedom. Endless upside.Interested in this Listing?
Miami Residence will connect you with an agent in a short time.
Land Info
| Directions: | East of Interstate 5, North of Ortega Hwy |
| View: | City Lights, Trees/Woods |
Infrastructure
| TV/Cable: | No |
| Telephone: | No |
| Water: | Public |
Community
| Tract Code: | Hunt Club (HC) |
| Tract Name: | Hunt Club |
| Complex Name: | Hunt Club Estates |
Detailed Map
Schools
Find a great school for your child
Active
$ 1,395,000
3Acres
$ 465,000per ACRE
129,700 ft2Lot Size


























