3887 Via Zumaya st, Corona, CA 92881
| Property type: | Single Family Residence |
| MLS #: | IV24211513MR |
| Year Built: | 2003 |
| Days On Market: | 590 |
| Listing Date: | October 18, 2024 |
| County: | Riverside |
Property Details / Mortgage Calculator / Community Information / Architecture / Features & Amenities / Rooms / Property Features
Property Details
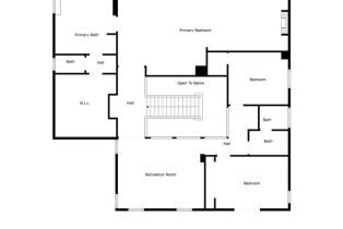
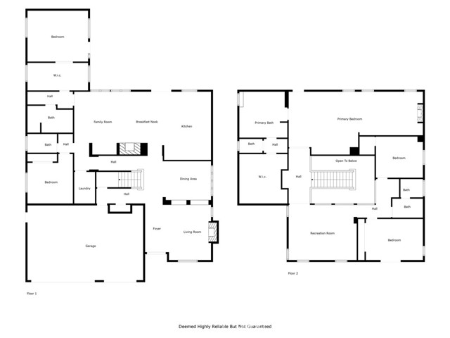
Welcome to your own oasis in the heart of Corona! This stunning two-story pool home is designed for comfort and luxury, perfect for families and those who love to entertain. As you approach, you ll notice the ample space provided by the three-car garage and a large driveway, offering plenty of room for all your toys and vehicles. The charm of this estate begins at the double-door entry, welcoming you into a refined living space. Step into the formal living room, complete with a gorgeous fireplace and French doors that lead to your private porch, ideal for morning coffee or evening relaxation. The formal dining room sets the stage for memorable family dinners. Maximize your space with two custom-built sheds, designed to provide plenty of room for all your storage needs. Whether you need to store tools, outdoor equipment, or seasonal items, these sheds offer a versatile solution tailored to your requirements. With durable construction and thoughtful design, you'll have easy access to your belongings while keeping everything organized and protected from the elements. Perfect for homeowners, hobbyists, or anyone needing extra storage space. The spacious family room seamlessly opens to the kitchen, making it easy to gather with loved ones. Conveniently located on the downstairs level, you ll find two bedrooms, including one with slider doors to the backyard, a bathroom, and generous closet space perfect for those who prefer to avoid stairs. Upstairs, the master suite retreat awaits, featuring a walk-in closet, a cozy sitting area, and an en-suite bathroom complete with a separate bath and shower. The upper level also includes a loft area, along with two additional bedrooms that share a well-appointed bathroom. Step outside to your private backyard oasis, where you can enjoy summer days lounging by the beautiful pool and spa. This outdoor space is perfect for hosting gatherings or simply unwinding in the sun. This property truly offers a blend of elegance, functionality, and a relaxing lifestyle. Don t miss the opportunity to make this charming estate your own!Interested in this Listing?
Miami Residence will connect you with an agent in a short time.
Mortgage Calculator
PURCHASE & FINANCING INFORMATION |
||
|---|---|---|
|
|
Community Information
| Address: | 3887 Via Zumaya st, Corona, CA 92881 |
| Area: | Corona |
| County: | Riverside |
| City: | Corona |
| Subdivision: | Chase Ranch South |
| Zip Code: | 92881 |
Architecture
| Bedrooms: | 5 |
| Bathrooms: | 5 |
| Year Built: | 2003 |
| Stories: | 2 |
Garage / Parking
| Parking Garage: | Direct Entrance, Driveway, Garage, Private, RV Access |
Community / Development
| Complex/Assoc Name: | Chase Ranch South |
| Assoc Pet Rules: | Call For Rules |
| Community Features: | Sidewalks, Storm Drains, Street Lights |
Features / Amenities
| Appliances: | Microwave, Oven-Gas |
| Laundry: | Dryer, Dryer Included, Gas Dryer Hookup, Inside, Room |
| Pool: | In Ground, Permits, Private |
| Spa: | In Ground, Private |
| Private Pool: | No |
| Private Spa: | Yes |
| Common Walls: | Detached/No Common Walls |
| Cooling: | Central |
| Heating: | Central |
Rooms
| Breakfast Bar | |
| Cabana | |
| Patio Open |
Property Features
| Lot Size: | 22,651 sq.ft. |
| View: | None |
| Directions: | Masters Dr. and Camino De Salmon St. |
Tax and Financial Info
| Buyer Financing: | Cash |
Detailed Map
Active
$ 1,699,000
23%
5 Beds
5 Full
4,444 Sq.Ft
Lot: 22,651 Sq.Ft
Home
Virtual Tour








































































