66661 Thunderbird ln, Desert Hot Springs, CA 92240
| Property type: | Single Family Residence |
| MLS #: | 219122191PS |
| Year Built: | 2024 |
| Days On Market: | 442 |
| Listing Date: | January 6, 2025 |
| County: | Riverside |
Property Details / Mortgage Calculator / Community Information / Architecture / Features & Amenities / Rooms / Property Features
Property Details
Gorgeous Brand New 2 Story Home with a POOL SIZE Backyard in a Gated Community Located just minutes from the I-10 Freeway, Palm Springs International Airport, and vibrant Downtown Palm Springs, this stunning new home offers the perfect blend of convenience and luxury. The property is situated within a secure gated community, providing a safe and desirable neighborhood for families and first-time homebuyers alike.Key Features:Buyer-Owned Solar System: Included in the purchase price, this eco-friendly feature not only reduces your carbon footprint but also saves on energy costs.Spacious Living Areas: Thoughtfully designed to maximize comfort and functionality, perfect for entertaining or relaxing.Modern Kitchen: Equipped with sleek white cabinets and beautiful beige quartz countertops, ideal for culinary enthusiasts.Flooring: Durable vinyl plank flooring throughout the main areas, complemented by plush carpet in the bedrooms for added warmth and comfort.Smart Home Features: Pre-wired for a home alarm system, ceiling fans in the living room and all bedrooms, flatscreen TV outlets in the living room and primary bedroom, and an electric vehicle charging station for eco-conscious owners.Completion Date: Scheduled for April 2025, Enjoy the best of Palm Springs living with its vibrant culture, stunning natural beauty, and endless opportunities for outdoor activities. This home offers a unique combination of style, convenience, and a great neighborhood, making it an exceptional choice for those seeking a luxurious desert lifestyle.Interested in this Listing?
Miami Residence will connect you with an agent in a short time.
Mortgage Calculator
PURCHASE & FINANCING INFORMATION |
||
|---|---|---|
|
|
Community Information
| Address: | 66661 Thunderbird ln, Desert Hot Springs, CA 92240 |
| Area: | Desert Hot Springs |
| County: | Riverside |
| City: | Desert Hot Springs |
| Subdivision: | Aventura Palms HOA |
| Zip Code: | 92240 |
Architecture
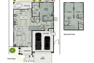
| Bedrooms: | 3 |
| Bathrooms: | 3 |
| Year Built: | 2024 |
| Stories: | 2 |
| Style: | Contemporary |
Garage / Parking
| Parking Garage: | Attached, Covered Parking, Door Opener, Driveway, Garage Is Attached, On street, Side By Side |
Community / Development
| Complex/Assoc Name: | Aventura Palms HOA |
| Assoc Amenities: | Assoc Maintains Landscape, Controlled Access |
| Assoc Pet Rules: | Call |
| Community Features: | Community Mailbox |
Features / Amenities
| Appliances: | Microwave, Range |
| Flooring: | Carpet, Vinyl |
| Laundry: | Laundry Area, Room |
| Security Features: | Automatic Gate, Card/Code Access, Fire Sprinklers, Gated, Prewired for alarm system |
| Private Pool: | No |
| Private Spa: | Yes |
| Cooling: | Air Conditioning, Central, Heat Pump(s) |
| Heating: | Electric, Forced Air, Heat Pump |
Rooms
| Dining Room | |
| Entry | |
| Great Room | |
| Loft |
Property Features
| Lot Size: | 5,663 sq.ft. |
| View: | Desert, Mountains |
| Directions: | Take I-10 E to N Gene Autry Trail toward Palm Drive, Continue onto Palm Dr. Turn right onto Camino Aventura, Turn Left onto Los Palmas Dr. Left onto Thunderbird Lane |
Tax and Financial Info
| Buyer Financing: | Cash |
Detailed Map
Active
$ 509,900
3 Beds
2 Full
1 ¾
1,857 Sq.Ft
Lot: 5,663 Sq.Ft
























