| Property type: |
Land |
| MLS #: |
SW24253246MR |
| Days On Market: |
458 |
| Listing Date: |
December 22, 2024 |
| County: |
Riverside |
| Zoning: |
R-A-5 |
Property Details
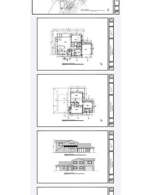
FINANCING AVAILABLE, STATED INCOME LOANS AS LOW AS 15% DOWN FIXED RATE FOR 10 YEARS FOR QUALIFIED BUYERS!! CALL HOWARD 714-475-3200 8.4 Acres of heaven in Sought after De Luz. Views from Lake Elsinore to Pachanga casino in Temecula and everything in between. You own the whole mountain down to Murrieta. Land has all surveys and Topography done and paid for, Perc and soils test done as well as Septic plan designed and paid for, Grading plan designed and paid for and submitted to the county, House plans designed for over 3600 square feet with two ADU units all paid for and submitted to county. Architectural plans have been paid for. 320 foot asphalt driveway put in to the building pad. Ready to get construction loan and build this dream opportunity. Pics attached of site plan and building plan as well as pics at night and day. There is no other site like this if you love a view come and get it!!! Listing agent is co owner.
Land Info
| Directions: |
up rancho california then rt on calle capistrano then rt granado pl then rt on first drive and then left on first drive then head to top |
| View: |
Canyon, City Lights, Panoramic |
Schools
Find a great school for your child