25 EL CAMINO REAL, Carlsbad, CA 92009
| Property type: | Land |
| MLS #: | NDP2501745MR |
| Days On Market: | 441 |
| Listing Date: | February 24, 2025 |
| County: | San Diego |
| Lot Dimensions: | ESTIMATE 2.19 - 2.48 ACRES SUBJECT TO SURVEY TRIANGLE: 229.54X962.51X1319.98 |
| Zoning: | RESIDENTIAL |
Property Details
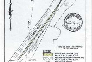
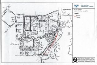
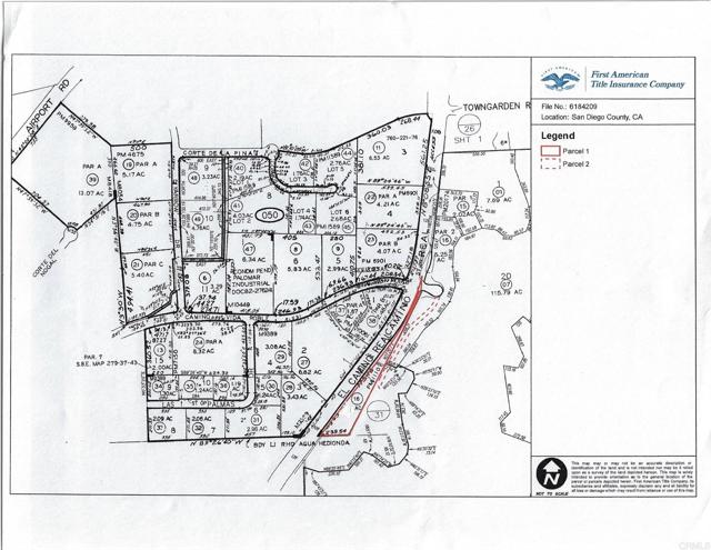
THIS PROPERTY IS TRANGULAR SHAPED WITH AN ESTIMATED ACERAGE OF 2.19 TO 2.48. AFTER REDUCTION OF THE EL CAMINO REAL ROAD WIDENING EASEMENT (BUYER TO VERIFY) ACCESS IS A 30 FOOT APRON OFF THE EASEMENT ROADWAY JASPER WAY. CURRENTLY THERE IS A SEWER HOOK UP MORATORIUM IN THE CITY OF CARLSBAD AFFECTING THIS PROPERTY THE CITY OF CARLSBAD PURCHASED AN EASEMENT ALONG EL CAMINO REAL ON THE WEST SIDE OF THIS PROPERTY FOR THE WIDENING AND IMPROVEMENT OF EL CAMINO REAL. THE CITY OF CARLSBAD HAS NOT SET A DATE NYET FOR THE CONSTRUCTION. THIS PROPERTY HAS A LONG ANBD NARROWING SHAPE. THE SOUTHERN END OF THE PROPERTY ,WHICH HAS A DEPRESSION IS THE MOST LIKELY LOCATION OF ANY IMPROVEMENTS. A SEWER EASEMENT OF 30 FEET CROSSES THE LOWER THIRD OF THE PROPERTY AND IS A HIGH PRESSURE LINE. THERE IS A 30 FOOT APRON ACCESS OFF JASPER WAY. BUYER TO SATISFY SELF AS TO ANY AND ALL CONDITIONS AND AVAILABILITY FOR DEVELOPMENT PRIOR TO THE CLOSE OF ESCROW. THERE IS A SDGE HIGH PRESSURE GAS LIKNE RUNNING ALONG THE NEW EASEMENT AS DESIGNATED BY YELLOW STAKES ABOUT 5 FEET TALL BUYER TO DETERMINE IF THERE IS ANY VEGETATION MITIGATION ON THE PROPERTY AND SATISY SELF.Interested in this Listing?
Miami Residence will connect you with an agent in a short time.
Land Info
| Directions: | PALOMAR AIRPORT ROAD EAST OF I-5 TO EL CAMINO REAL TURN RIGHT (SOUTH) ON EL CAMINO REAL TO CAMINO VIDA ROBLE PROPERT STARTS THERE ON THE EAST SIDE OF EL CAMINO REAL. ACCESS ROAD IS JASPER WAY |
| Ingress, Egress: | 30 FT APRON JASPER WAY |
| View: | None |
Infrastructure
| TV/Cable: | No |
| Electric: | Electricity Available, Natural Gas Available, See Remarks, Utilities Underground |
| Gas: | Electricity Available, Natural Gas Available, See Remarks, Utilities Underground |
| Improvements: | NONE |
| Sewer: | Public Sewer |
| Telephone: | No |
Community
Detailed Map
Schools
Find a great school for your child
Active
$ 1,300,000
2Acres
$ 650,000per ACRE
95,396 ft2Lot Size





