2245 Ivy rd, Oceanside, CA 92054
| Property type: | Single Family Residence |
| MLS #: | 250026854SD |
| Year Built: | 2026 |
| Days On Market: | 321 |
| Listing Date: | May 8, 2025 |
| County: | San Diego |
Property Details / Mortgage Calculator / Community Information / Architecture / Features & Amenities / Rooms / Property Features
Property Details
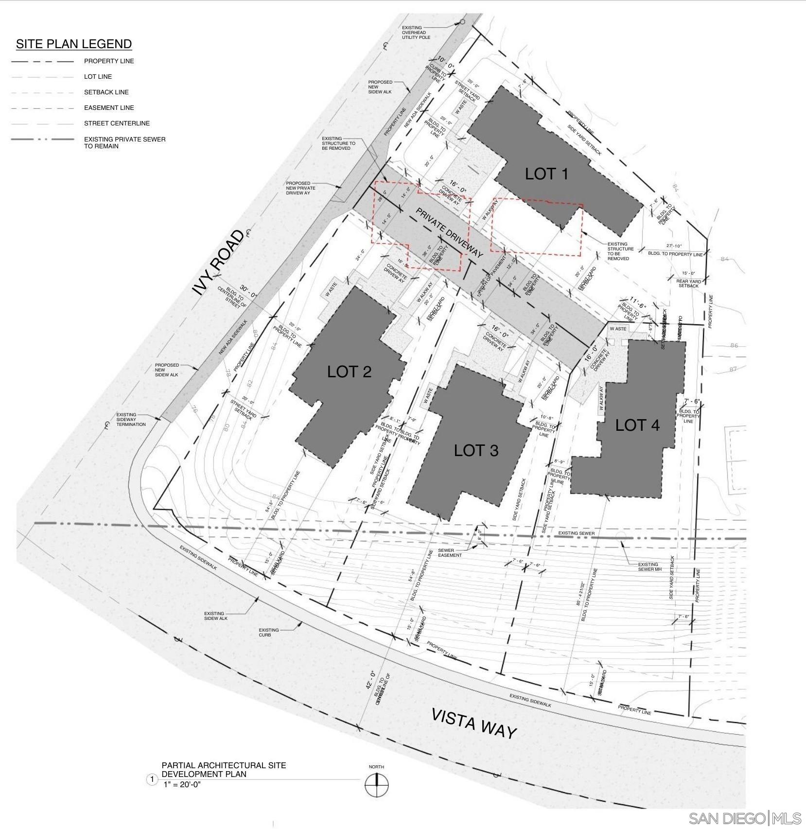
Stunning New Construction. Four beautiful homes will be build on this lovely street in Fire Mountain. Each home will have its own exclusive use fenced yard. Lots will be approximately 10,000-11,000 square feet each. The exteriors will have contemporary white board and batten siding, dark grey brick veneer and charcoal trim. Roofs will be metal or shingle depending on the lot. The interiors are thoughtfully designed with high-end finishes and spacious open floorplans. Two car garages. AC. Completion in 12-14 months. Don't miss this opportunity, and come be the first to select the lot of your choice!Interested in this Listing?
Miami Residence will connect you with an agent in a short time.
Mortgage Calculator
PURCHASE & FINANCING INFORMATION |
||
|---|---|---|
|
|
Community Information
| Address: | 2245 Ivy rd, Oceanside, CA 92054 |
| Area: | R-1:SINGLE - Oceanside |
| County: | San Diego |
| City: | Oceanside |
| Subdivision: | Ocean Ivy Estates |
| Zip Code: | 92054 |
Architecture
| Bedrooms: | 3 |
| Bathrooms: | 4 |
| Year Built: | 2026 |
| Stories: | 2 |
Garage / Parking
| Parking Garage: | Attached |
Community / Development
| Complex/Assoc Name: | Ocean Ivy Estates |
Features / Amenities
| Appliances: | Range/Oven |
| Laundry: | In Closet |
| Private Pool: | No |
| Private Spa: | Yes |
| Cooling: | Central Forced Air |
| Heating: | Forced Air, Natural Gas |
Rooms
| Dining Area | |
| Family Room | |
| Kitchen | |
| Living Room | |
| Primary Bedroom |
Property Features
| Lot Size: | 11,633 sq.ft. |
| Zoning: | R-1:SINGLE |
Tax and Financial Info
| Buyer Financing: | Cash |
Detailed Map
Active
$ 2,295,000
3 Beds
3 Full
1 ¾
2,499 Sq.Ft
Lot: 11,633 Sq.Ft

















