176 Randall st, District 10 - Southeast, CA 94131
| Property type: | Single Family Residence |
| MLS #: | 81961043ML |
| Year Built: | 1955 |
| Days On Market: | 710 |
| Listing Date: | April 12, 2024 |
| County: | San Francisco |
Property Details / Mortgage Calculator / Community Information / Architecture / Features & Amenities / Rooms / Property Features
Property Details
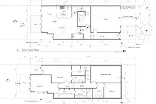
VIEWS! Sweeping, unobstructed views of San Francisco from this fully permitted 'shovel-ready' 4600sq ft development opportunity for two townhomes on a deep lot of 25*125ft with a 93 walkability score. The lower two floors (2100sq ft) will have SF Downtown views while the upper townhouse (2500sq foot) will have amazing 360 views of the SF Bay, Bridge and Downtown. This new building fully entitled by the SF Planning Department, is designed to flow as a single family or as two units. The current plans include an elevator, a two car garage, green elements including passive and active solar systems, radiant heating, cotton insulation, sustainable flooring, while the ample garden will offer green space as well as native mature trees and vegetation. All that's left for the buyer is the fun part of choosing finishes! Rare to find on such a large lot, this is the perfect opportunity for a developer or a family looking to build their dream home without wading through the enormous task of gettiInterested in this Listing?
Miami Residence will connect you with an agent in a short time.
Mortgage Calculator
PURCHASE & FINANCING INFORMATION |
||
|---|---|---|
|
|
Community Information
| Address: | 176 Randall st, District 10 - Southeast, CA 94131 |
| Area: | RH2 - 6821 |
| County: | San Francisco |
| City: | District 10 - Southeast |
| Zip Code: | 94131 |
Architecture
| Bedrooms: | 2 |
| Bathroom: | 1 |
| Year Built: | 1955 |
| Stories: | 1 |
Garage / Parking
| Parking Garage: | Attached |
Community / Development
Features / Amenities
| Cooling: | Other |
| Heating: | Other |
Property Features
| Lot Size: | 3,123 sq.ft. |
| Zoning: | RH2 |
Tax and Financial Info
| Buyer Financing: | Cash |
Detailed Map
Active
$ 2,500,000
2 Beds
1 Full
1,317 Sq.Ft
Lot: 3,123 Sq.Ft









