3735 Santa Claus ln, Carpinteria, CA 93013
| Property type: | Land |
| MLS #: | V1-29310VC |
| Days On Market: | 387 |
| Listing Date: | April 14, 2025 |
| County: | Santa Barbara |
| Zoning: | C-1 |
Property Details
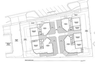
With an impressive 175 feet of ocean frontage and direct access to the sand, located along the desirable oceanfront of Santa Claus Lane in Carpinteria, this extraordinary 20,037 SF vacant lot presents a rare opportunity to design your ideal coastal retreat or develop for commercial or mixed use. Conceptual development plans for a mixed-use project are available, offering a vision of the property's vast potential. Boasting ample space and versatility, this prime parcel enjoys close proximity to the acclaimed Padaro Beach Grill and other beloved seaside attractions. As the last remaining lot on Santa Claus Lane, this is a truly exceptional offeringcombining the freedom to create with the allure of an iconic coastal lifestyle.The property captures the essence of seaside living and offers breathtaking views and incomparable opportunities.Interested in this Listing?
Miami Residence will connect you with an agent in a short time.
Land Info
| Directions: | Turn left onto Via Real - Turn left onto Padaro Lan - Turn left at the second cross street Claus lan |
| View: | Ocean |
Infrastructure
| TV/Cable: | No |
| Telephone: | No |
| Water: | Other |
Community
| Tract Code: | Not Applicable |
| Tract Name: | Not Applicable |
Detailed Map
Schools
Find a great school for your child
Active
$ 5,300,000
1Acres
$ 5,300,000per ACRE
22,037 ft2Lot Size

















