520 Foothill rd, Ojai, CA 93023
| Property type: | Single Family Residence |
| MLS #: | PW25119092MR |
| Year Built: | 1928 |
| Days On Market: | 385 |
| Listing Date: | April 14, 2025 |
| County: | Ventura County |
Property Details / Mortgage Calculator / Community Information / Architecture / Features & Amenities / Rooms / Property Features
Property Details
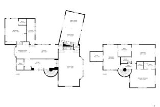
Located on Foothill Road, one of Ojai's most renowned streets, the relaxed sophistication of Ojai s only Tudor Castle masterfully integrates rich history and undeniable character with modern conveniences due to a full restoration prioritizing the integrity of the Tudor Revival original design. Designated a Historic Landmark, this 1929 jewel was commissioned by silent screen star Estelle Clarke and designed by Austin Pierpont, one of the most notable architects of the era. Estelle Clark and her composer husband Leo Robin, occupied the home throughout the 1930 s where Mr. Robin wrote such classics as Bob Hope s signature song Thanks For The Memory . Today, the home retains its impeccable charm with a 4 bedrooms, 3 full/1 half-bath main residence, 1-bed, 1-bath guest cottage, and detached studio on the +/-1.18-acre estate. Inside, the main residence showcases an oversized living room with barrel ceiling and venetian plaster throughout the home, original oak and mahogany parquet flooring, original leaded glass and stained glass windows, and sun-soaked rooms. Outside grounds feature a serene pool and spa, pergola, glass pool house, gardens, panoramic mountain views of Chief Peak and Topa Topa, an interior courtyard, and oversized terrace for entertaining. Located in the heart of the stunning Ojai Valley within the majestic Topa Topa Mountains, the prime location of Ojai s Tudor Castle provides convenient access to hiking trails, farmers' markets, downtown Ojai's restaurants, boutiques, wine-tasting rooms, and the luxurious Ojai Valley Inn.Interested in this Listing?
Miami Residence will connect you with an agent in a short time.
Mortgage Calculator
PURCHASE & FINANCING INFORMATION |
||
|---|---|---|
|
|
Community Information
| Address: | 520 Foothill rd, Ojai, CA 93023 |
| Area: | RO1 - Ojai |
| County: | Ventura County |
| City: | Ojai |
| Zip Code: | 93023 |
Architecture
| Bedrooms: | 4 |
| Bathrooms: | 5 |
| Year Built: | 1928 |
| Stories: | 2 |
Garage / Parking
Community / Development
| Community Features: | Hiking |
Features / Amenities
| Laundry: | Room |
| Pool: | Private |
| Private Pool: | Yes |
| Common Walls: | Detached/No Common Walls |
| Cooling: | Central |
| Heating: | Forced Air |
Property Features
| Lot Size: | 50,965 sq.ft. |
| View: | Trees/Woods |
| Zoning: | RO1 |
| Directions: | Foothill Road and Quail Oaks Drive |
Tax and Financial Info
| Buyer Financing: | Cash |
Detailed Map
Active
$ 6,495,000
4 Beds
4 Full
1 ¾
3,875 Sq.Ft
Lot: 50,965 Sq.Ft
Home
Virtual Tour










































































