1180 First st, Oxnard, CA 93030
| Property type: | Single Family Residence |
| MLS #: | V1-28570VC |
| Year Built: | 2024 |
| Days On Market: | 382 |
| Listing Date: | March 8, 2025 |
| County: | Ventura County |
Property Details / Mortgage Calculator / Community Information / Architecture / Features & Amenities / Rooms / Property Features
Property Details
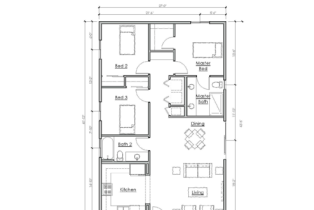
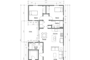
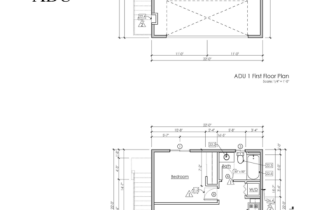
NEW CONSTRUCTION: Encanto Homes, 27 beautifully designed Spanish Revival homes. Single story, offering style, comfort, and functionality. Ideally located near shopping, recreational amenities and minutes to the beach. Set on spacious lots averaging 5,048 square feet, each home is framed by vibrant Bougainvillea and finished with smooth glacier-white Santa Barbara plaster, creating a charming and welcoming streetscape.QUALITY AND CRAFTSMANSHIP:Our homes are designed with comfort, style, and convenience. Enjoy energy-efficient solar power, Spanish tile roofs, sleek quartz countertops, elegant wooden cabinets, Spanish-Style doors, waterproof laminate flooring, and stainless-steel appliances.ADU OPTIONBuild an ADU above the garage after close of escrow. Ideal for rental income or as a private guest suite. Listing brokers are members of Encanto Homes, LLC..Interested in this Listing?
Miami Residence will connect you with an agent in a short time.
Mortgage Calculator
PURCHASE & FINANCING INFORMATION |
||
|---|---|---|
|
|
Community Information
| Address: | 1180 First st, Oxnard, CA 93030 |
| Area: | R1 - Oxnard - Northwest |
| County: | Ventura County |
| City: | Oxnard |
| Subdivision: | Unknown - TBD |
| Zip Code: | 93030 |
Architecture
| Bedrooms: | 3 |
| Bathrooms: | 2 |
| Year Built: | 2024 |
| Stories: | 1 |
| Style: | Bungalow |
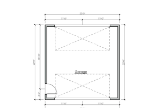
Garage / Parking
| Parking Garage: | None |
Community / Development
| Complex/Assoc Name: | Unknown - TBD |
| Assoc Amenities: | Other |
| Assoc Pet Rules: | Call For Rules |
| Community Features: | Biking, Sidewalks, Street Lights, Storm Drains, Dog Park |
Features / Amenities
| Appliances: | Convection Oven, Microwave, Range |
| Laundry: | Gas Dryer Hookup, In Closet, Inside, Room, Washer Hookup |
| Pool: | None |
| Spa: | None |
| Private Pool: | No |
| Private Spa: | Yes |
| Common Walls: | Detached/No Common Walls |
| Cooling: | None |
| Heating: | Central, Electric, Forced Air, Solar |
Property Features
| Lot Size: | 5,048 sq.ft. |
| View: | None |
| Zoning: | R1 |
| Directions: | From Ventura: Take 101 S, exit 62B for Oxnard Blvd, turn right, then right onto W 2nd St. Camarillo: Take 101 N, exit 62 for Oxnard Blvd/Vineyard Ave, turn left onto Oxnard Blvd, then right onto W 2nd St. |
Tax and Financial Info
| Buyer Financing: | Cash |
Detailed Map
Active
$ 859,875
0%
3 Beds
2 Full
Lot: 5,048 Sq.Ft
Home
Virtual Tour















