5103 W Wooley rd, Oxnard, CA 93035
| Property type: | Condominium |
| MLS #: | 250028143SD |
| Year Built: | 2010 |
| Days On Market: | 350 |
| Listing Date: | May 21, 2025 |
| County: | Ventura County |
Property Details / Mortgage Calculator / Community Information / Architecture / Features & Amenities / Rooms / Property Features
Property Details
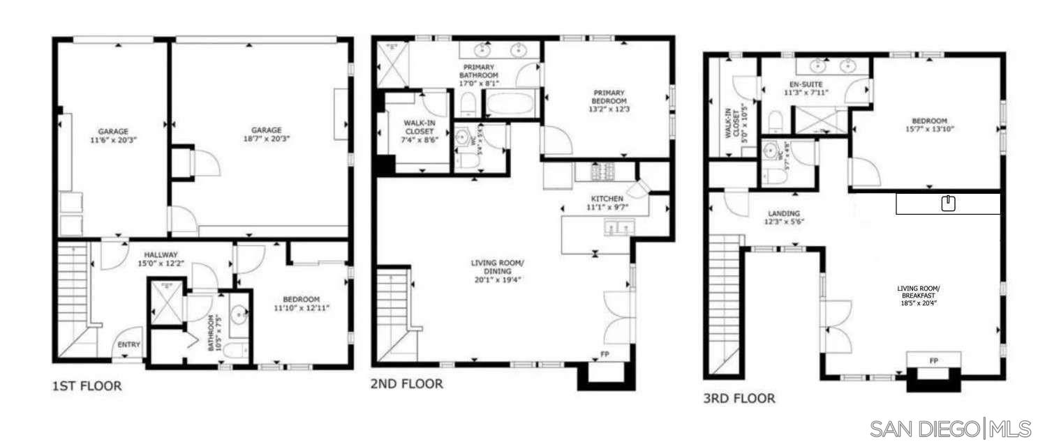
This stunning, custom-designed Mediterranean corner unit offers over 2,500 sq ft of coastal luxury across three stories, featuring 3 spacious bedrooms (including two primary suites) and 5 bathrooms (3 full, 2 powder rooms). Designed for both comfort and style, the home boasts hardwood floors throughout, two expansive open-concept living areas each with its own fireplace and a sleek wet bar perfect for entertaining. Step outside to 2 large private balconies where you can enjoy ocean breezes with your morning coffee or evening glass of wine. Thoughtful upgrades include heated bathroom floors, soaring ceilings, and a rare 3-car garage. Located just a short stroll from Mandalay Beach and Oxnard Beach Park, you ll also enjoy easy access to The Collection, Main Street Ventura, Channel Islands Harbor, and more. Mandalay Shores sits ideally between Malibu and Santa Barbara, just minutes from Channel Islands National Park and Montecito. Walk to local favorites including restaurants, a bakery, a craft brewery, and a convenience store all just two minutes away. This is a rare opportunity to own a one-of-a-kind coastal retreat in a neighborhoodInterested in this Listing?
Miami Residence will connect you with an agent in a short time.
Mortgage Calculator
PURCHASE & FINANCING INFORMATION |
||
|---|---|---|
|
|
Community Information
| Address: | 5103 W Wooley rd, Oxnard, CA 93035 |
| Area: | Oxnard |
| County: | Ventura County |
| City: | Oxnard |
| Subdivision: | BTV |
| Zip Code: | 93035 |
Architecture
| Bedrooms: | 3 |
| Bathrooms: | 5 |
| Year Built: | 2010 |
| Stories: | 3 |
Garage / Parking
| Parking Garage: | Garage - Rear Entry |
| Total Parking: | 10 |
Features / Amenities
| Appliances: | Convection Oven, Gas Cooking |
| Flooring: | Stone, Tile, Wood |
| Laundry: | Garage, Laundry Closet Stacked |
| Security Features: | Carbon Monoxide Detector(s), Gated Community with Guard |
| Private Pool: | No |
| Private Spa: | Yes |
| Cooling: | Central Forced Air |
| Heating: | Fireplace, Forced Air, Natural Gas |
Rooms
| Workshop |
Property Features
| Lot Size: | 6,250 sq.ft. |
| View: | Mountains, Ocean |
| Directions: | Just West of Harbor Blvd, three unit building. |
Tax and Financial Info
| Buyer Financing: | Cash |
Detailed Map
Schools
Find a great school for your child
Active
$ 1,430,000
3 Beds
3 Full
2 ¾
2,335 Sq.Ft
Lot: 6,250 Sq.Ft





















