37 Ann st, Ventura, CA 93001
| Property type: | Single Family Residence |
| MLS #: | 225002393VC |
| Year Built: | 1918 |
| Days On Market: | 315 |
| Listing Date: | May 14, 2025 |
| County: | Ventura County |
Property Details / Mortgage Calculator / Community Information / Architecture / Features & Amenities / Rooms / Property Features
Property Details
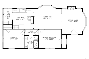
Don't miss this darling home in a prime location! This absolutely CHARMING craftsman home circa 1918 offers one of the most coveted locations in Ventura. You can head downtown to fine dining, live music, shopping, local farmers market and MORE. Less than a mile from the beach! Nostalgic touches throughout include bay windows, built in cabinetry, original hardwood floors and a Dutch door that opens to a back porch dining area with peek-a-boo views. There are two bedrooms and a remodeled 3/4 bath with dual vanity. The recently improved kitchen is complete with quartz countertops, white cabinetry, stainless steel appliances, recessed lighting and an abundance of natural light. Enjoy sunset entertaining with cool afternoon breezes on the beautifully landscaped and private outdoor living area. Permitted roof and gutters completed in June 2024. Additional upgraded improvements include electrical panel and rewire, central heating and AC, tankless water heater, indoor laundry hook ups and completely fenced and low maintenance landscape.Interested in this Listing?
Miami Residence will connect you with an agent in a short time.
Mortgage Calculator
PURCHASE & FINANCING INFORMATION |
||
|---|---|---|
|
|
Community Information
| Address: | 37 Ann st, Ventura, CA 93001 |
| Area: | CR - California St. to Mills Rd |
| County: | Ventura County |
| City: | Ventura |
| Zip Code: | 93001 |
Architecture
| Bedrooms: | 2 |
| Bathrooms: | 0 |
| Year Built: | 1918 |
| Stories: | 1 |
Garage / Parking
| Parking Garage: | On street |
Community / Development
| Community Features: | Curbs |
Features / Amenities
| Appliances: | Gas, Microwave |
| Laundry: | Gas Dryer Hookup, Inside |
| Private Pool: | No |
| Private Spa: | Yes |
| Common Walls: | Detached/No Common Walls |
| Cooling: | Central |
| Heating: | Central, Natural Gas |
Property Features
| Lot Size: | 3,170 sq.ft. |
| View: | Peek-A-Boo |
| Zoning: | CR |
| Directions: | Exit 101N at California St, Right on Thompson Blvd., Left on Ann St. |
Tax and Financial Info
| Buyer Financing: | Cash |












































