5344 Rincon Beach Park dr, Ventura, CA 93001
| Property type: | Single Family Residence |
| MLS #: | V1-29200VC |
| Year Built: | 1991 |
| Days On Market: | 389 |
| Listing Date: | March 1, 2025 |
| County: | Ventura County |
Property Details / Mortgage Calculator / Community Information / Architecture / Features & Amenities / Rooms / Property Features
Property Details
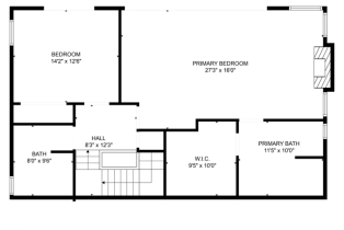
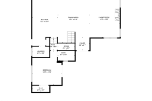
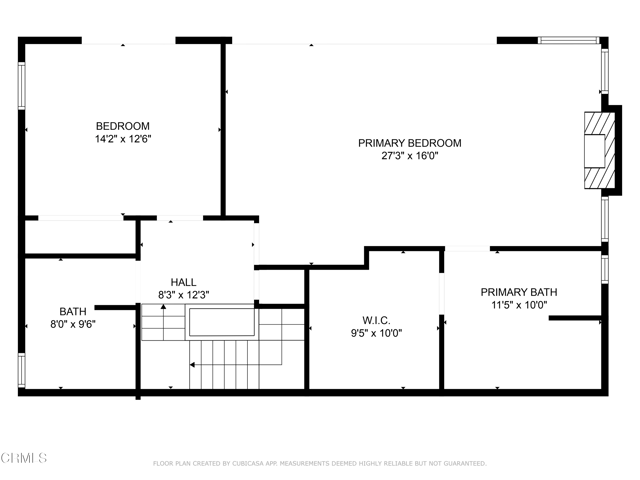
A beach house that channels modern Mediterranean in Seacliff Beach Colony. A style that's both timeless and contemporary in this four-bedroom, three-bath, and over 3,000-square-foot Oceanfront home.This two-story home's first floor features an open-concept design with a large kitchen, dining, and living area. The space includes expansive Pella patio doors that seamlessly slide open, stacking against each other to let the sea breeze flow throughout and open to a 50-foot deck. The first floor also includes a bedroom and a private en suite.Upstairs is the large, ocean-facing primary suite with a fireplace and seating area, a large ensuite bath, and a walk-in closet. Another oceanfront room and full bathroom are adjacent to the primary. Off both upstairs bedrooms is an adjoined deck with views of the Channel Islands. Bonus! A large multipurpose space completes the upstairs area--think office, workout, or kids' space.A beachside family home where the outside is as important as the inside: the 50-foot deck is one of the largest and most private in the area. The deck has great landscaping, built-in gas fire-pit, and plenty of space for dining or lounging. Enjoy the island view and the surf right out front at Hobson surf break. Surf, paddle, fish, tide pool hunt just out front! Seacliff Beach Colony has a great local vibe where everyone knows their neighbors and takes pride in the community. Located just north of Ventura and a mere 30 minutes in either direction to Santa Barbara and Malibu.Interested in this Listing?
Miami Residence will connect you with an agent in a short time.
Mortgage Calculator
PURCHASE & FINANCING INFORMATION |
||
|---|---|---|
|
|
Community Information
| Address: | 5344 Rincon Beach Park dr, Ventura, CA 93001 |
| Area: | Ventura Beach North of Ventura River |
| County: | Ventura County |
| City: | Ventura |
| Subdivision: | Seacliff Homeowners Association |
| Zip Code: | 93001 |
Architecture
| Bedrooms: | 4 |
| Bathrooms: | 3 |
| Year Built: | 1991 |
| Stories: | 2 |
| Style: | Contemporary |
Garage / Parking
| Parking Garage: | Garage - 2 Car |
Community / Development
| Complex/Assoc Name: | Seacliff Homeowners Association |
| Assoc Pet Rules: | Call For Rules |
| Community Features: | Biking, Watersports, Fishing |
Features / Amenities
| Appliances: | Oven-Gas |
| Laundry: | Gas Or Electric Dryer Hookup, In Kitchen |
| Pool: | None |
| Spa: | None |
| Security Features: | Automatic Gate, Gated |
| Private Pool: | No |
| Private Spa: | Yes |
| Common Walls: | Detached/No Common Walls |
| Cooling: | Central |
| Heating: | Central, Forced Air |
Property Features
| Lot Size: | 6,256 sq.ft. |
| View: | Ocean, Panoramic |
| Directions: | Hwy 101 North or South, exit Seacliff exit. Head South 1/2 block to gated entry. Requires Gate Code. |
Tax and Financial Info
| Buyer Financing: | Cash |
Detailed Map
Active
$ 5,495,000
4 Beds
3 Full
3,086 Sq.Ft
Lot: 6,256 Sq.Ft
Home
Virtual Tour































